ID CP1734112

VANZARE CASA INDIVIDUALA-Finisata -Panouri solare-CORBEANCA PADURE

ID CP1734112

240,000 € TVA inclus

Casă / Vilă cu 4 camere de vânzare
Corbeanca
119 mp
2022

Daca va doriti o casa amplasata intr-o zona civilizata, inconjurata de verdeata si linistea naturii atunci aceasta ar putea fi cea mai buna optiune.

Aceasta este o casa construita pe o suprafata de teren de 500mp, cu o curte libera de 350mp si amenajata cu plante, gazon si pomisori.

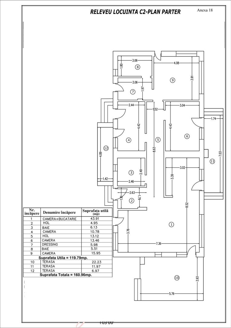
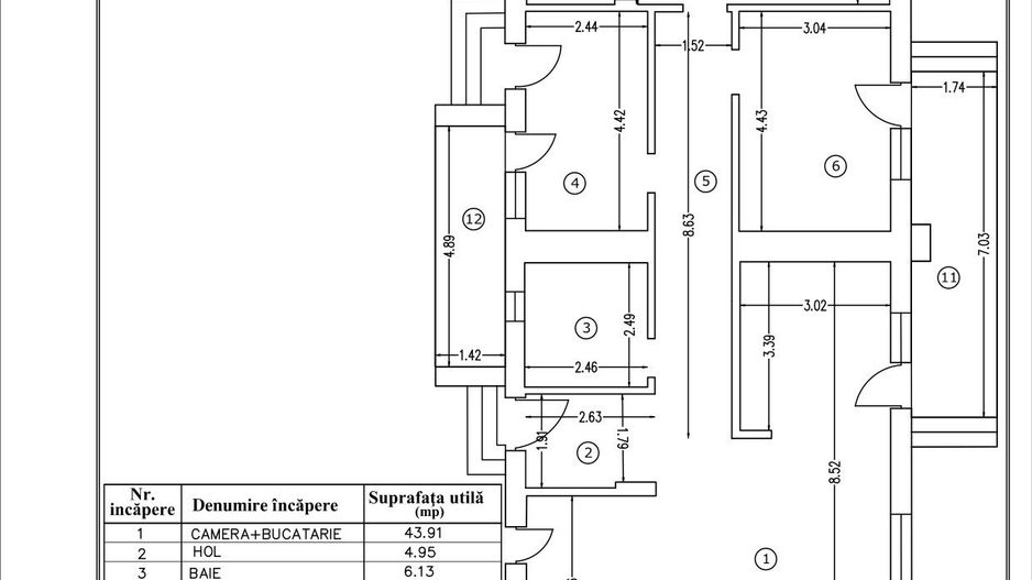
Situata pe parter, dispune de un living generos cu bucatarie, in suprafata de 43mp, trei dormitoare dintre care unul este master bedroom, inca o baie si trei terase. Casa se preda complet finisata si cu incalzirea in pardoseala realizata, obiecte sanitare, tamplarie interioara si toate instalatiile electrice racordate la reteaua proprie prin panouri solare, acumulatori stocare 10kW.

Certificatul de performanta energetica este in curs de edificare.

Comuna se află în partea de nord a județului, pe malurile râului Cociovaliștea, care izvorăște din vestul comunei în pădurea Valea Mocanului. Prin comună trece șoseaua județeană DJ101, care o leagă spre vest de Buftea (unde se termină în DN1A) și spre est de Balotești (unde se intersectează cu DN1), Moara Vlăsiei și mai departe în județul Ialomița de Fierbinți-Târg și Jilavele (unde se termină în DN1D).

Pentru mai multe detalii ma puteti contacta telefonic.

Citește mai mult

  • Număr camere
    4
  • Dormitoare
    3
  • Număr băi
    2
  • Geam la baie
    Da
  • Număr terase
    3
  • Număr locuri parcare
    2
  • Disponibilitate
    Imediat
  • Tip casă
    Individual
  • Stare interior
    Semifinisat
  • Anul finisării
    2023
  • Suprafață utilă
    119 mp
  • Suprafață construită
    180 mp
  • Suprafață teren
    500 mp
  • Suprafață curte
    350 mp
  • Deschidere
    11 m
  • Stadiu construcție
    Finalizată
  • An construcție
    2022
  • Construcție nouă
    Da
  • De la dezvoltator
    Da
  • Are pod
    Da

Facilități

Apă
Bucătărie deschisă
Bucătărie mobilată
Cabină de duș
Canalizare
CATV
Centrală proprie
Contor electric
Contor gaz
Curte
Faianță
Gaz
Grădină proprie
Iluminat stradal
Încălzire prin pardoseală
Internet
Izolație exterioară
Mijloace de transport în comun
Panouri solare
Parcare deschisă
Parchet
Pereți piatră naturală
Străzi asfaltate
Telefon
Ușă intrare metal
Uși interior lemn
WC Serviciu
Marius Damian - GOPO Real Estate
Marius Damian
Associated Broker

0730177248


Solicită chiar acum o vizionare
Telefon
Sună acum Solicită vizionare
Necesare:

Site-ul nu poate funcționa corect fără aceste cookie-uri. Vezi cookie-urile

Statistică:

Strângem statistici anonime despre voi, vizitatorii unici, pentru a vă îmbunătăți experiența dumneavoastră. Vezi cookie-urile

Marketing:

Pentru a ne promova mai eficient serviciile noastre, folosim cookies pentru a vă identifica și a vă oferi proprietăți și servicii personalizate. Vezi cookie-urile

Acest site folosește cookies, află detalii. Alege ce tipuri de cookies dorești să permitem: