ID CP1384338

Vila Primaverii 985 mp desfasurati teren 390 mp 38 ml deschidere D+P+3

ID CP1384338

2,400,000 €

Casă / Vilă cu 18 camere de vânzare
Primaverii, Bucuresti
800 mp
1940

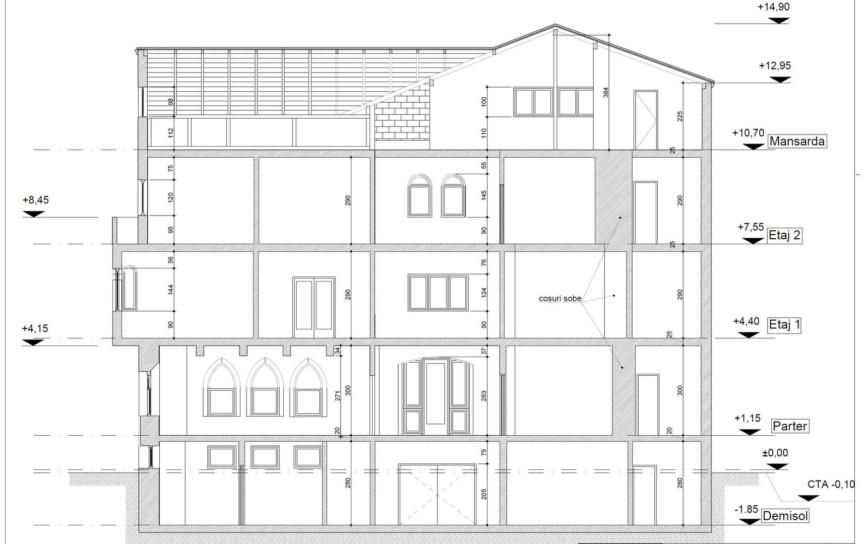
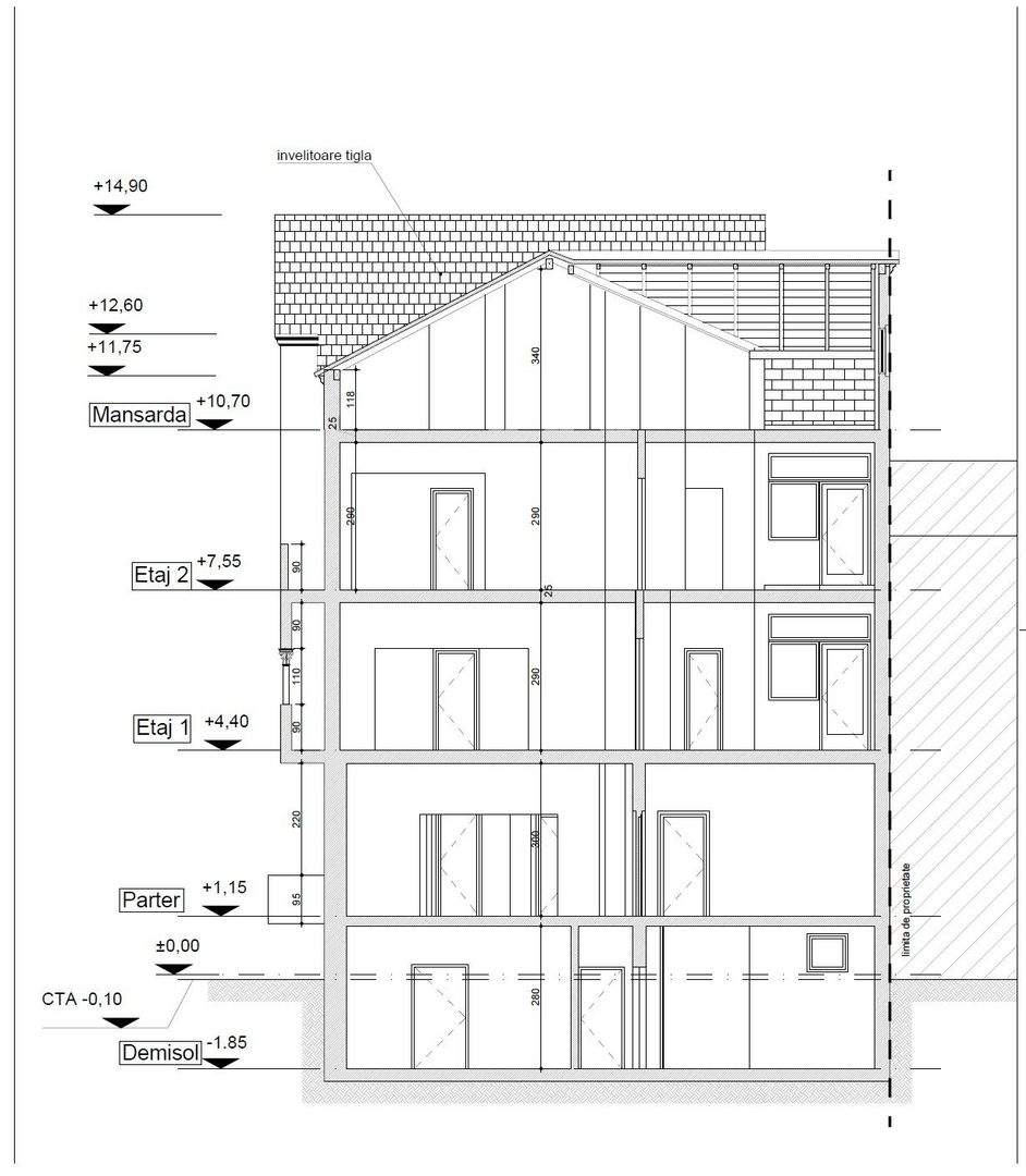
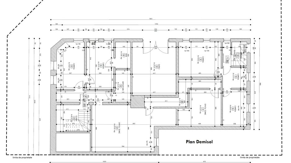
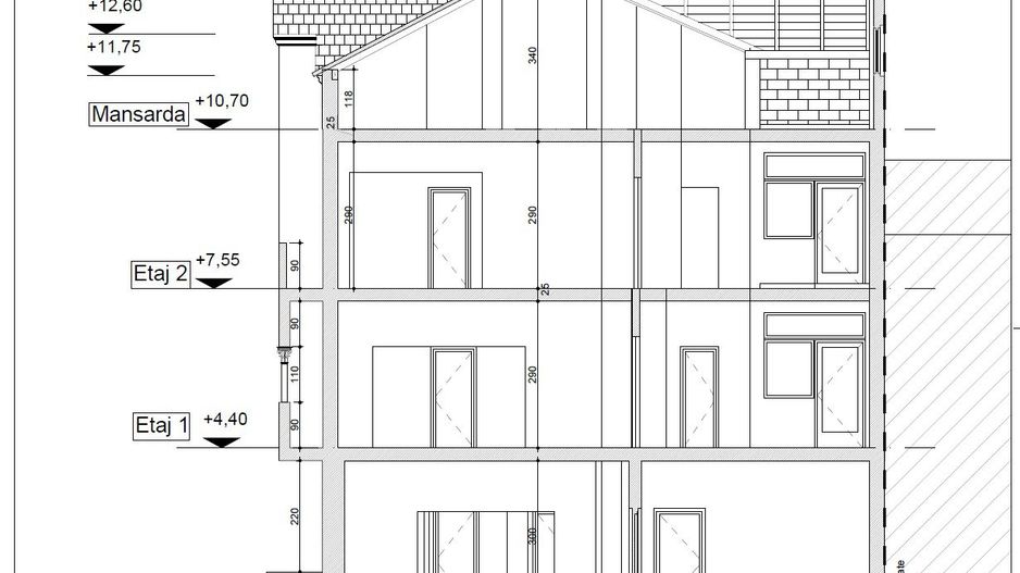
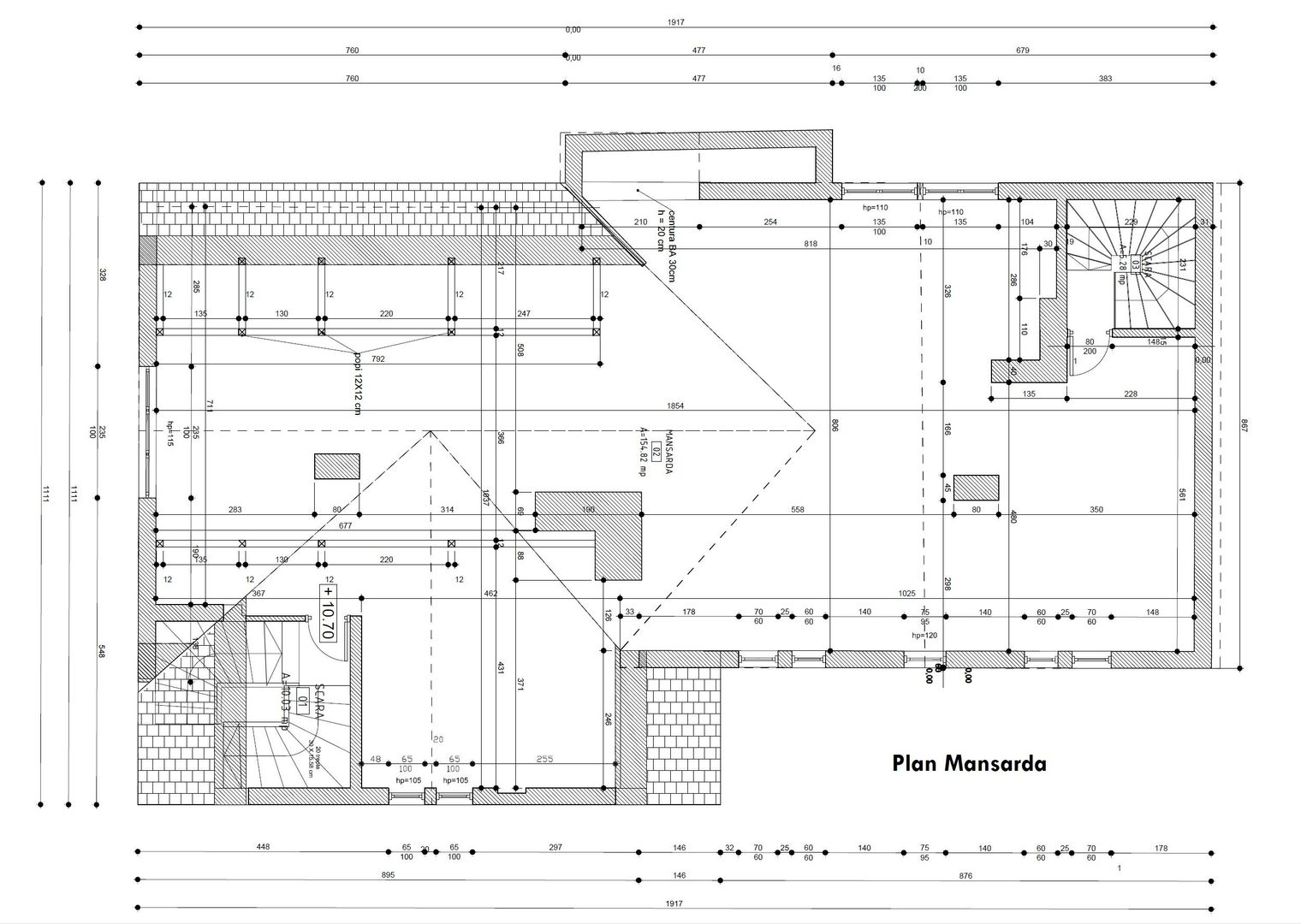
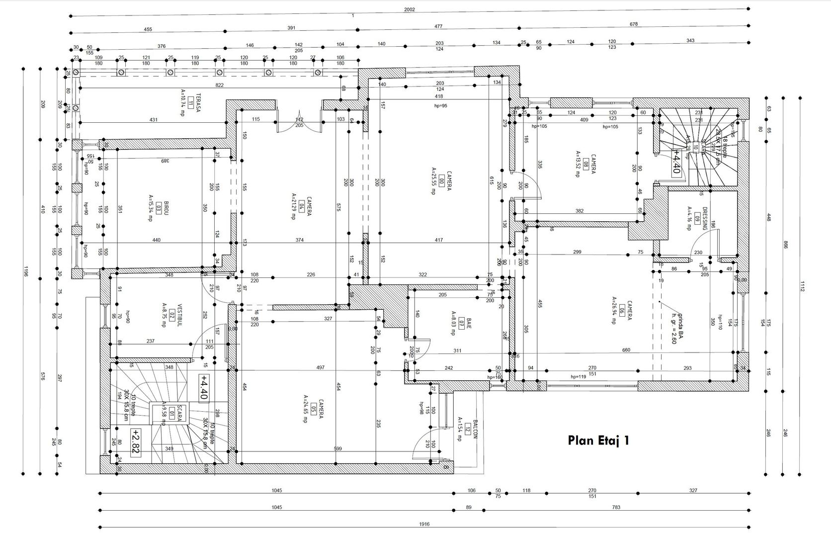
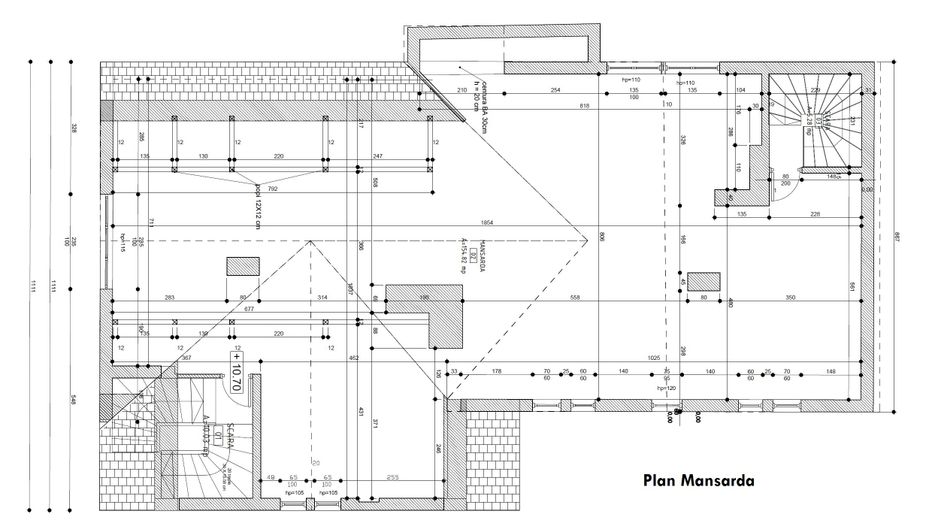
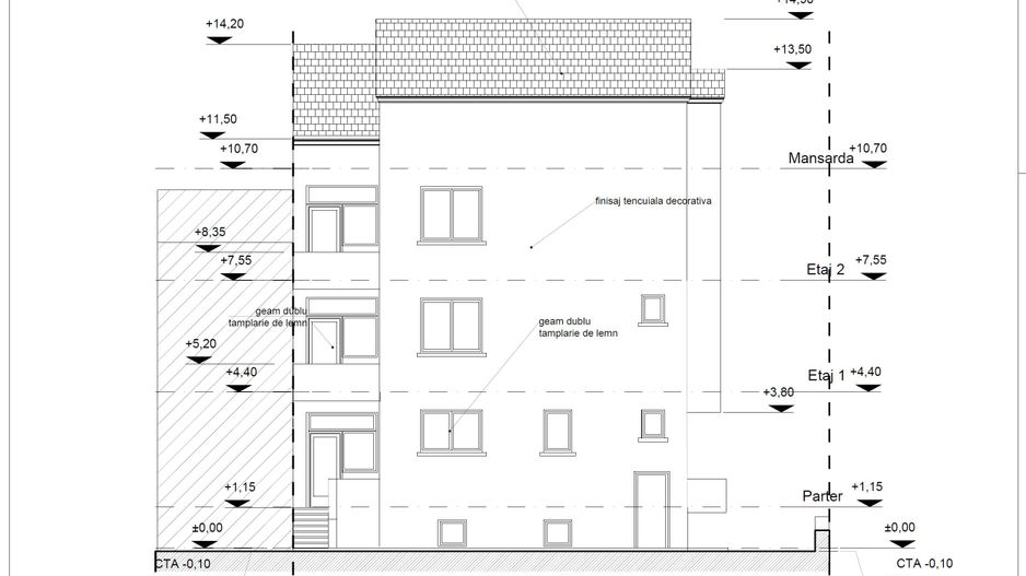
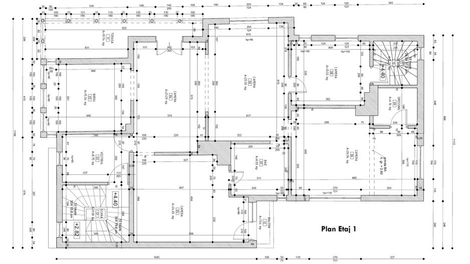
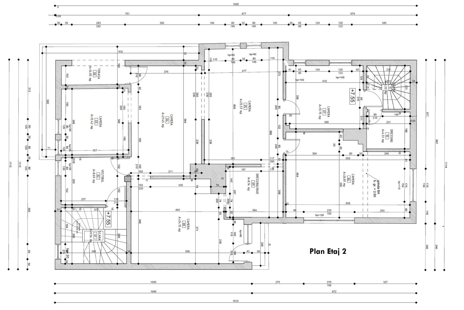
Va propunem spre vanzare o proprietate pozitionata exceptional, in cartierul Primaverii, in proximitatea Pietei Charles de Gaulle si a parcului Regele Mihai I sau Herastrau. Aceasta a fost edificata in anii 1940 pe structura din beton si caramida plina, dispune de o deschidere la cele doua strazi de 38 metri liniari, este amplasata pe un lot de teren in suprafata de 390 mp avand o amprenta la sol de 190 mp si are o suprafata desfasurata de 985 mp distribuita pe un regim de inaltime de 5 nivele, Demisol + Parter + 2 Etaje + Mansarda.

Proprietatea necesita renovare, amenajare si poatefi suplimentata cu inca un etaj conform indicilor urbanistici zonali, rezultand D+P+3E+M.

Avand in vedere amplasamentul, deschiderea, dimensiunea si istoricul cladirii fara legea 112, aceasta poate reprezenta o reala oportunitate de piata pentru amenajarea unui hotel boutique (care lipseste in acest cartier), sediu firma, birou notarial, birou avocatura, sediu reprezentativ, clinica, etc dar si pentru o dezvoltare cu profil rezidential.

Pentru detalii sau programarea unei vizionari, va stau la dispozitie.

Citește mai mult

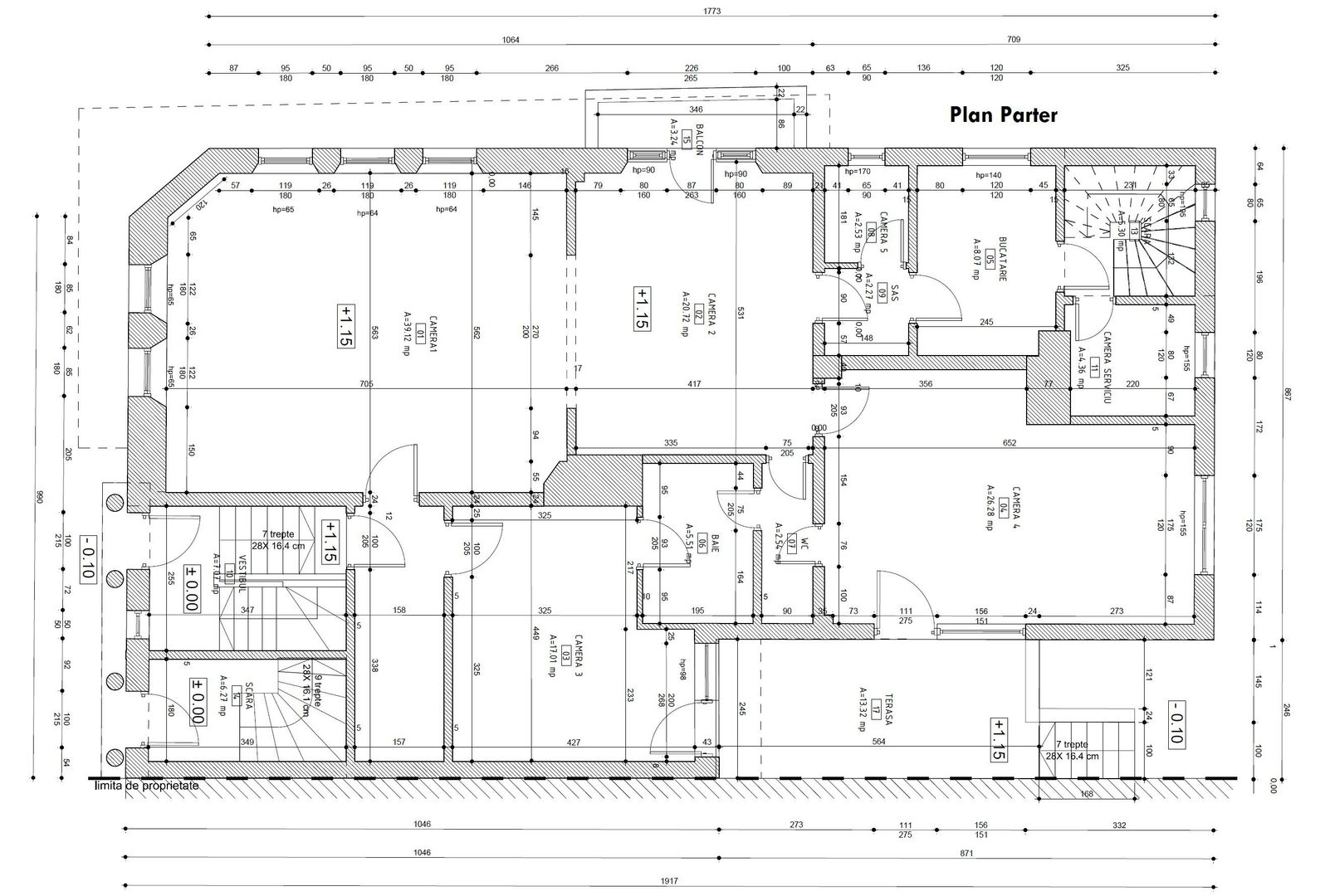
  • Număr camere
    18
  • Dormitoare
    14
  • Număr bucătării
    2
  • Număr băi
    8
  • Număr balcoane
    4
  • Număr terase
    2
  • Număr garaje
    1
  • Număr locuri parcare
    10
  • Disponibilitate
    Imediat
  • Tip casă
    Individual
  • Stare interior
    Necesită renovare
  • Anul finisării
    1940
  • Suprafață utilă
    800 mp
  • Suprafață construită
    985 mp
  • Suprafață construită la sol (Amprentă)
    190 mp
  • Suprafață teren
    390 mp
  • Suprafață curte
    200 mp
  • Suprafață curte liberă
    200 mp
  • Suprafață terasă
    30 mp
  • Deschidere
    38 m
  • Acoperiș
    Țiglă
  • Stadiu construcție
    Necesită renovare
  • An construcție
    1940
  • Tip construcție
    Beton
  • Număr etaje clădire
    3
  • Are demisol
    Da
  • Are mansardă
    Da

Facilități

Apă
Canalizare
CATV
Curent
Gaz
Iluminat stradal
Internet
Mijloace de transport în comun
Străzi asfaltate
Telefon
Paul Gaitan - GOPO Real Estate
Paul Gaitan
Sales Manager

0722204909


Solicită chiar acum o vizionare
Telefon
Sună acum Solicită vizionare
Necesare:

Site-ul nu poate funcționa corect fără aceste cookie-uri. Vezi cookie-urile

Statistică:

Strângem statistici anonime despre voi, vizitatorii unici, pentru a vă îmbunătăți experiența dumneavoastră. Vezi cookie-urile

Marketing:

Pentru a ne promova mai eficient serviciile noastre, folosim cookies pentru a vă identifica și a vă oferi proprietăți și servicii personalizate. Vezi cookie-urile

Acest site folosește cookies, află detalii. Alege ce tipuri de cookies dorești să permitem: