ID CP1909753

Birouri sau cabinete de Lux în Armenească

Această proprietate nu mai este activă,
te invităm să vizualizezi proprietăți similare

ID CP1909753

450,000 €

Casă / Vilă cu 8 camere de vânzare
Armeneasca, Bucuresti
206 mp
1930

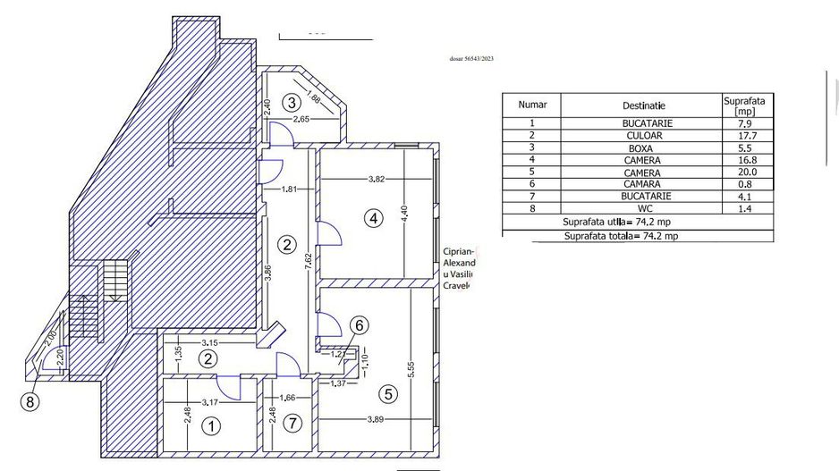
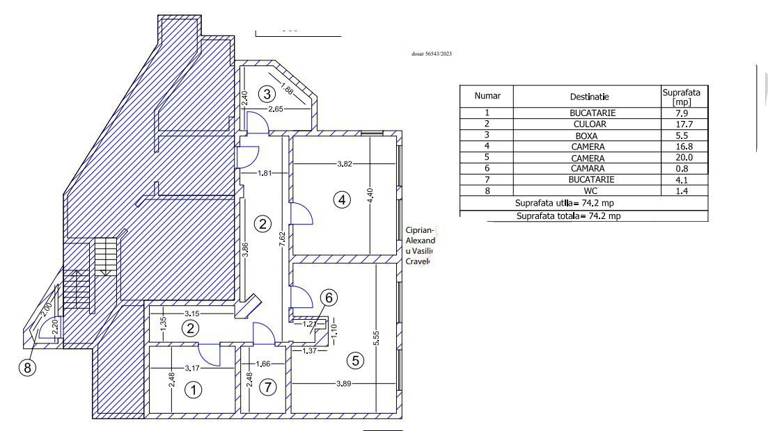
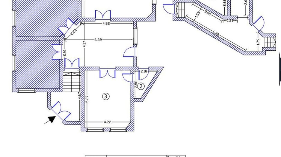
Gopo Real Estate are deosebita plăcere de a vă oferi spre achiziție două apartamente dintr-un imobil deosebit, o veche casă boierească, complet restaurată și reabilitată, situată în Cartierul Armenesc. Suprafața care se vinde este compusă din 7 camere, trei bucătării sau locuri de servit masa, două băi și un spațiu sanitar, loc de depozitare. Primul apartament, situat la Parterul înălțat, este compus din trei camere, recondiționate cu deosebită grijă, profesionalism și decență, este spațiul ideal pentru funcționarea oricărui birou sau punct de lucru care dorește să transmită clientului sentimentul că se află într-o atmosferă de înaltă ținută. Parchetul de lemn masiv, sobele de teracotă, finisajele tavanelor și tâmplăria dau o notă de lux autentic.

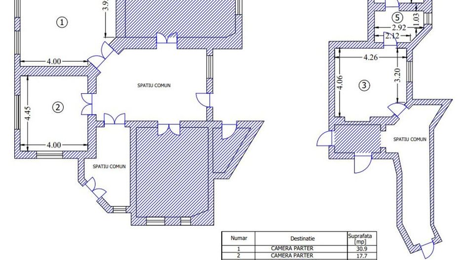
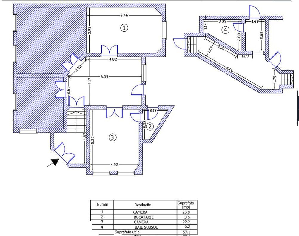
Al doilea apartament, în suprafață de 100mp utili, se află la demisolul înalt și luminos. Este recondiționat cu materiale moderne, gresii, faianțe și parchet laminat, se pretează pentru funcționarea unor laboratoare sau birouri tehnice care deservesc activitatea de la parter.

Această casă splendidă se pretează desfășurării unor activități economice. Între cele două spații, cel de la demisol și cel de la parter, nu există comunicare directă și exclusivă. Accesul se face prin spațiile comune folosite și de proprietarul mansardei. Pentru detalii vă rog să ne contactați telefonic oricând doriți.

Vă așteptăm la vizionare!

Citește mai mult

  • Număr camere
    8
  • Număr băi
    3
  • Disponibilitate
    Imediat
  • Tip casă
    Individual
  • Stare interior
    Ultrafinisat
  • Suprafață utilă
    206 mp
  • Suprafață construită
    250 mp
  • Suprafață teren
    50 mp
  • Deschidere
    30 m
  • Stadiu construcție
    Finalizată
  • An construcție
    1930
  • Tip construcție
    Cărămidă
  • Are demisol
    Da

Facilități

Aer condiționat
Apă
Canalizare
CATV
Curent
Gaz
Iluminat stradal
Internet
Mijloace de transport în comun
Străzi asfaltate
Telefon
Necesare:

Site-ul nu poate funcționa corect fără aceste cookie-uri. Vezi cookie-urile

Statistică:

Strângem statistici anonime despre voi, vizitatorii unici, pentru a vă îmbunătăți experiența dumneavoastră. Vezi cookie-urile

Marketing:

Pentru a ne promova mai eficient serviciile noastre, folosim cookies pentru a vă identifica și a vă oferi proprietăți și servicii personalizate. Vezi cookie-urile

Acest site folosește cookies, află detalii. Alege ce tipuri de cookies dorești să permitem: