ID CP2083705

Vanzare apartament 5 camere in vila zona Calarasi

Această proprietate nu mai este activă,
te invităm să vizualizezi proprietăți similare

ID CP2083705

250,000 €

Apartament cu 5 camere de vânzare
Calea Calarasilor, Bucuresti
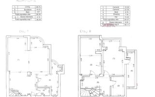
165 mp
1960

GOPO Real Estate va propune spre vanzare un apartament de 5 camere, cu curte proprie, in zona Calea Calarasi - Hala Traian, Sector 2, Bucuresti.

Proprietatea dispune de intrare separata . Apartamentul ocupa tot etajul 1 al unui imobil alcatuit din subsol, parter, etaj si pod, 1 hol mare, 5 dormitoare, 2 holuri mai mici, 1 baie, 1 bucatarie, 1 balcon si 3 boxe.

Zona este linistita, cu case si vile, aproape de mijloace de transport in comun, artere importante de circulatie, parcuri, centre comerciale, scoli etc. Centrul orasului este la doar 10 minute de mers pe jos.

Casa beneficiaza de unele imbunatatiri, insa, pentru a o aduce la standardele actuale necesita investitii suplimentare.

Exista contorizari separate pentru toate utilitatile.

Pentru a afla mai multe detalii despre apartament, conditii de vanzare si a programa o vizionare, nu ezitati sa ne contactati!

Citește mai mult

  • Tip apartament
    Apartament
  • Compartimentare
    Decomandat
  • Număr camere
    5
  • Dormitoare
    4
  • Număr bucătării
    1
  • Număr băi
    1
  • Etaj
    1
  • Suprafață utilă
    165 mp
  • Suprafață construită
    190 mp
  • Suprafață totală
    1,180 mp
  • Suprafață curte
    100 mp
  • Disponibilitate
    Imediat
  • Confort
    1
  • Stare interior
    Bună
  • Anul finisării
    2010
  • Număr balcoane
    1
  • Număr locuri parcare
    2
  • Imobil
    Casă / Vilă
  • Stadiu construcție
    Finalizată
  • An construcție
    1960
  • Tip construcție
    Cărămidă
  • Număr etaje clădire
    1
  • Număr subsoluri
    1
  • Are pod
    Da

Facilități

Apă
Apometre
Canalizare
CATV
Contor căldură
Contor electric
Contor gaz
Curent
Gaz
Iluminat stradal
Internet
Mijloace de transport în comun
Străzi asfaltate
Telefon
Necesare:

Site-ul nu poate funcționa corect fără aceste cookie-uri. Vezi cookie-urile

Statistică:

Strângem statistici anonime despre voi, vizitatorii unici, pentru a vă îmbunătăți experiența dumneavoastră. Vezi cookie-urile

Marketing:

Pentru a ne promova mai eficient serviciile noastre, folosim cookies pentru a vă identifica și a vă oferi proprietăți și servicii personalizate. Vezi cookie-urile

Acest site folosește cookies, află detalii. Alege ce tipuri de cookies dorești să permitem: