ID CP2743941

Apartament 2 camere (office) Cotroceni

ID CP2743941

1,600 €

Apartament cu 2 camere de închiriat
Cotroceni, Bucuresti
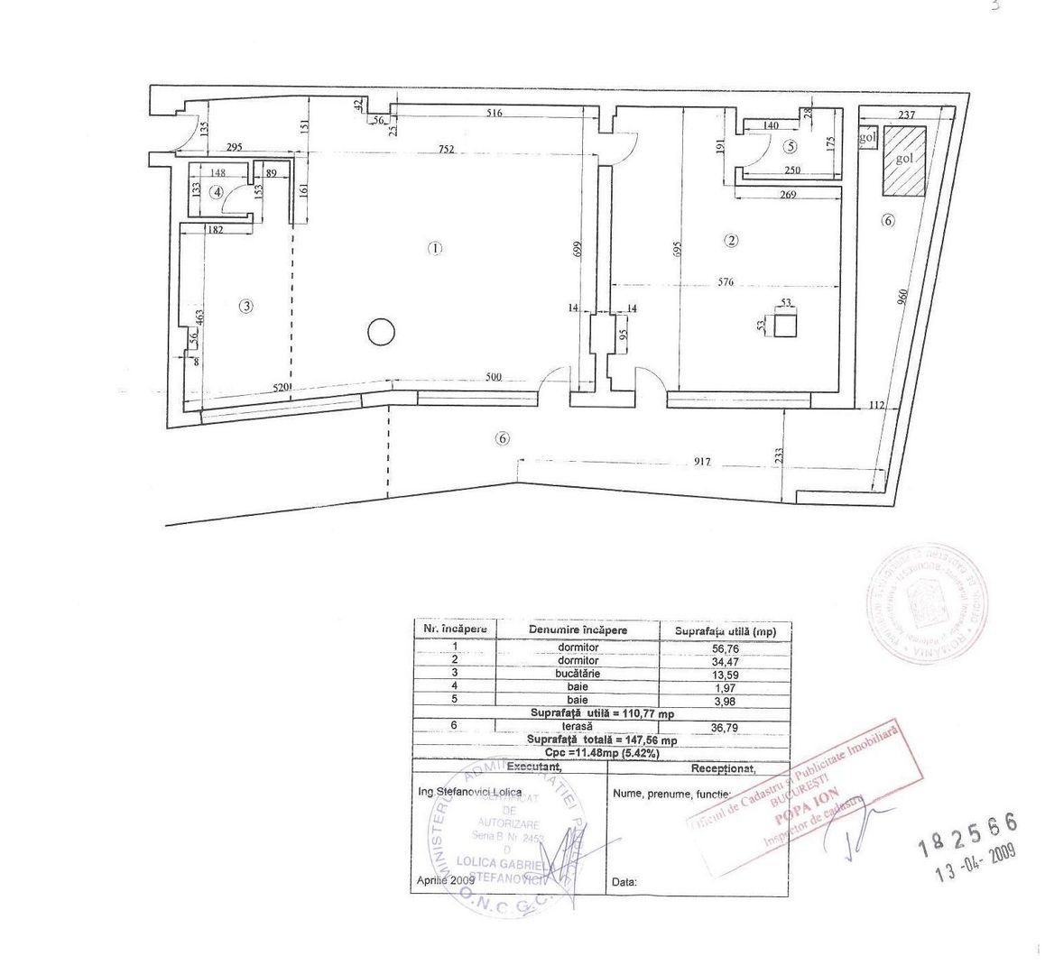
110.77 mp
2007

Gopo Real Estate va propune spre inchirere un apartament cu 2 camere, situat la parterul unui bloc cu 4 etaje, construit in anul 2007.

Suprafata utila generoasa de 110 mp, compartimentare functionala cu 2 bai si bucatarie deschisa, + terasa in suprafata de 37 mp. Imobilul dispune de lift, sistem de monitorizare video, centrala de imobil si aparate de aer conditionat. Se ofera nemobilat, fiind ideal pentru amenajarea unui birou.

Disponibil incepand cu data de 20 Octombrie.

Pentru mai multe informatii sau pentru a programa o vizionare, nu eziati sa ma contactati.

Citește mai mult

  • Tip apartament
    Apartament
  • Compartimentare
    Semidecomandat
  • Număr camere
    2
  • Dormitoare
    1
  • Număr bucătării
    1
  • Număr băi
    2
  • Etaj
    Parter
  • Suprafață utilă
    110.77 mp
  • Suprafață totală
    147.56 mp
  • Disponibilitate
    Imediat
  • Confort
    1
  • Stare interior
    Finisat modern
  • Număr terase
    1
  • Imobil
    Bloc de apart.
  • An construcție
    2007
  • Construcție nouă
    Da
  • Tip construcție
    Beton
  • Număr etaje clădire
    4

Facilități

Aer condiționat
Apă
Bucătărie deschisă
Cabină de duș
Calorifere
Canalizare
Centrală imobil
Curent
Faianță
Ferestre PVC
Gaz
Gresie
Iluminat stradal
Internet
Izolație exterioară
Lift
Mijloace de transport în comun
Nemobilat
Sistem de alarmă
Străzi asfaltate
Supraveghere video
Ușă intrare metal
Uși interior lemn
Vopsea lavabilă
WC Serviciu
Andrei Cristescu - GOPO Real Estate
Andrei Cristescu
Associated Broker

0741246246


Solicită chiar acum o vizionare
Telefon
Sună acum Solicită vizionare
Necesare:

Site-ul nu poate funcționa corect fără aceste cookie-uri. Vezi cookie-urile

Statistică:

Strângem statistici anonime despre voi, vizitatorii unici, pentru a vă îmbunătăți experiența dumneavoastră. Vezi cookie-urile

Marketing:

Pentru a ne promova mai eficient serviciile noastre, folosim cookies pentru a vă identifica și a vă oferi proprietăți și servicii personalizate. Vezi cookie-urile

Acest site folosește cookies, află detalii. Alege ce tipuri de cookies dorești să permitem: